買いたい ~ 物件検索 ~

詳細

価格 1,678万円 物件番号 No.70
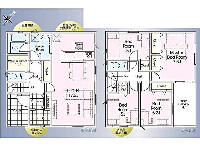
間取り 4LDK 種別 新築一戸建
土地/建物面積 305.07㎡/106.92㎡ 山陰本線 松崎駅 徒歩 3分
用途地域 無指定 構造 木造スレート葺2階建造
地目/都市計画 宅地/未線引区域 築年月 2025年3月
建ペイ率/容積率 80%/400% 住所 鳥取県東伯郡湯梨浜町大字旭75-4(地番)
設備
駐車場 電気 上水道 下水道 オール電化 室内洗濯機置場 
システムキッチン 追焚き機能 シャンプードレッサー シャワー付トイレ 
浴室乾燥機 モニターホン 新築 
コメント
<POINT>
広々LDK17.2帖。各部屋に収納付いてます!
玄関には収納力の高いシューズインクローゼット!
1,778万円(2026.1.13時点) 
↓ 
1,678万円(2026.2.6現在)に値下げ

<学区・周辺環境>
東郷小学校まで1,100m(徒歩約16分)
湯梨浜中学校まで4,200m(徒歩約57分)
松崎駅まで210m。
ファミリーマート湯梨浜店まで190m。

<駐車場・道路幅員>
3台駐車可能
北東側道路:4.77m、北西側道路:10.93m

<設備>
IH。システムキッチン。ウォークインクローゼット。追い焚き機能。浴室乾燥機。床下収納。TVインターホン。温水洗浄便座(トイレ2ヶ所:1階2階)洗髪洗面化粧台。インナーバルコニー。クローゼット。シューズボックス。シューズインクローゼット。室内洗濯機置場。浴室・洗面所・トイレに窓

<ライフライン>
オール電化・公営水道、公共下水(汚水・雑排水)

<備考>
カーテンレール・網戸・TVアンテナは付いてません
下記補助金が使える対象物件です!
・若者夫婦、子育て世代住宅支援事業補助金
・移住定住者住宅支援事業補助金
・仲介手数料補助金
補助金に関するお手伝いや相談、住宅ローン相談も
承っておりますのでお気軽にお問い合わせ下さい!

<取引態様・入居予定年月>
媒介・即引渡し可

外観

間取図
リビング
キッチン
浴室
洗面所
トイレ(1階)
クローゼット
洋室(2階)
洋室(2階)
玄関
インナーバルコニー
周辺マップ


お問合せ